Throughout my career I have seen some of the best (and worst) bathrooms imaginable. I have learned the key to a perfect bathroom is the thorough planning and setting out of every element in the bathroom design. Take a look at my bathroom Pinterest board for some inspiration.
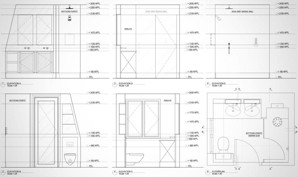
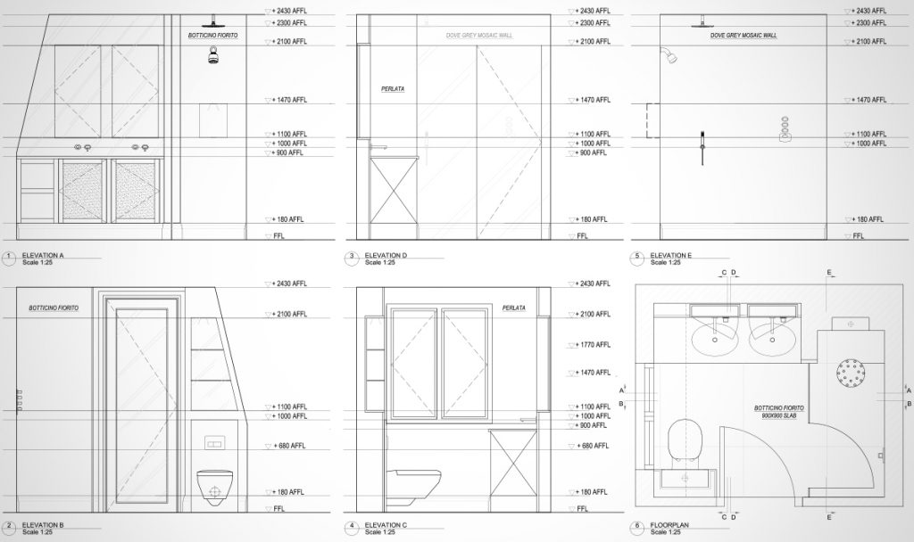
The first consideration should be how the client desires bathroom to function (i.e bath/ bath and shower/ double vanity unit etc) and how best to achieve this whilst bearing in mind the spatial capability of the room. Planning out the perfect bathroom takes time and a few trial and errors on AutoCAD. It’s never a case of first time lucky; until I have exhausted every option available I would not be happy to present plans to a client. During the planning process the plumbing, materials, finishes and lighting must also be considered. I will always go to the extent of planning exactly where every tile should be laid and clearly draw out detailed elevations and sections to make it very clear to my clients and contractors how to achieve the desired bathroom design. See examples I have drawn below…
Some of my do’s and dont’s:
If space allows, setting a vanity area into an alcove, or building out a false wall, can allow for a clever hidden storage solution behind mirrors. Rather than having basins mounted on a vanity, I favour undercut sinks hidden beneath a slab of marble. This doesn’t just create a much sleeker look, it is also more functional and easier to clean. Mounting the sink taps onto the wall or mirror above the vanity will further enhance the useable space around the sink and shows the area has been carefully considered. Depending on the adjoining rooms design, the colours can be picked up in the vein of marble chosen. I would normally choose one type of marble for a bathroom, however if budget allows – this can be contrasted with a striking piece of marble or quartz for the vanity or bath surround slab.
via Pintrest Creating a striking shower area can make or break a bathroom design; using mosaics in this area can clearly define and add to that luxury experience. I like large showers – if possible with a “rain” shower recessed into the ceiling, with a fixed shower head for those not wanting to get their hair wet (we’ve all been there!). Body jets are a personal preference, I don’t really see much use in them but that’s just me! In this day and age, bathrooms should be tanked… that is to say no water will escape. This will allow for no shower tray to be required keeping, the marble all at the same level – careful though as this can be slippery, make sure to request the area in the shower has a protective screen or sandblasted to add extra grip.
via Pintrest At least in this country – I would advise on under-floor heating, there’s nothing like treading on warm stone on a cold winters morning. Bathrooms can be steamy places… make sure the correct ventilation is installed and perhaps opt for heated mirrors, no more wiping the mirror down after a shower. Towel warmers should be close to the shower and/or bath and the correct proportions for the room.
via Pintrest Careful of trends when it comes to your sanitaryware – rose gold might be what’s happening now, but would you still love it in 5 years time? I normally prefer to stick with a polished nickel or chrome or if you feeling brave perhaps brushed brass.
Lighting is key. Having a light source that illuminates your face above the sink is most important followed by the other key areas of the bathroom (above the shower/bath and in any apertures). Adding a hidden light strip under the vanity or perhaps up-lit onto on a coffered ceiling can bring more mood and interest to the room.
Subtle details such as a shadow gap between wall and ceiling, or perhaps a metal trim on your vanity cabinetry can make that all important difference to your bathroom design – but keep it simple.
via Pintrest 
19th July, 2025

14th March, 2025










































